Jeden skan, wiele możliwości. Technologia LiDAR pozwala stworzyć idealny model 3D oraz precyzyjne rzuty nieruchomości
Rynek nieruchomości coraz śmielej sięga po nowoczesne rozwiązania. W Bukowcu działa marka, która udowadnia, że prezentacja domu czy mieszkania może być czymś znacznie więcej niż galerią zdjęć. SkanTwin specjalizuje się w profesjonalnym skanowaniu 3D, tworząc realistyczne wirtualne spacery po nieruchomościach.
Mimo, że marka jest stosunkowo młoda, ma już na swoim koncie wyjątkową realizację – skanowanie 3D zamku krzyżackiego. Projekt ten pokazał, że nowoczesna technologia może z powodzeniem wspierać nie tylko sprzedaż nieruchomości, lecz także promocję obiektów historycznych i turystycznych.

Kliknij powyżej, aby przejść do
interaktywnej prezentacji 3D Zamku w Świeciu.
Dzięki tej technologii potencjalny klient może dokładnie obejrzeć każde pomieszczenie, sprawdzić układ przestrzeni i „przejść się” po domu bez konieczności osobistej wizyty.
To rozwiązanie nie tylko wygodne, ale przede wszystkim skuteczne - oferty z wirtualnym spacerem przyciągają większą uwagę i pozwalają wyróżnić się na tle konkurencji.
Agenci nieruchomości na co dzień mierzą się z powtarzalnymi problemami:
Do tego dochodzi konieczność ciągłego odpowiadania na te same pytania i wyróżnienia oferty na tle setek podobnych ogłoszeń. W efekcie znaczna część ich pracy nie przekłada się bezpośrednio na sprzedaż.
Dodatkowym wyzwaniem są rosnące koszty paliwa i dojazdów na kolejne spotkania, które coraz bardziej obciążają budżet agencji.
Właśnie w tym miejscu pojawia się rozwiązanie, które realnie zmienia sposób pracy z ofertą - spacery wirtualne.
Pozwalają one klientowi dokładnie zapoznać się z nieruchomością jeszcze przed umówieniem spotkania, co znacząco ogranicza liczbę przypadkowych prezentacji. Dzięki temu agent spotyka się już z osobami świadomymi wyboru, a nie dopiero wstępnie zainteresowanymi.
Oferty wzbogacone o spacer wirtualny wyróżniają się na tle innych ogłoszeń i przyciągają większą uwagę, budując jednocześnie profesjonalny wizerunek agenta. W praktyce oznacza to nie tylko oszczędność czasu, ale też większą skuteczność - mniej spotkań, za to zdecydowanie bardziej konkretnych.

Choć głównym obszarem działalności są nieruchomości na sprzedaż, oferta kierowana jest również do hoteli, obiektów organizujących wesela i inne wydarzenia oraz obiektów użyteczności publicznej.
Wirtualny spacer daje przyszłym gościom możliwość poznania wnętrz w sposób przejrzysty i profesjonalny, co znacząco ułatwia podjęcie decyzji o rezerwacji.
– Zależy mi na tym, aby klienci mogli zobaczyć przestrzeń dokładnie taką, jaka jest w rzeczywistości. Technologia 3D pozwala oddać każdy detal i klimat miejsca – podkreśla Agnieszka Kuziak-Janowska, właścicielka firmy.
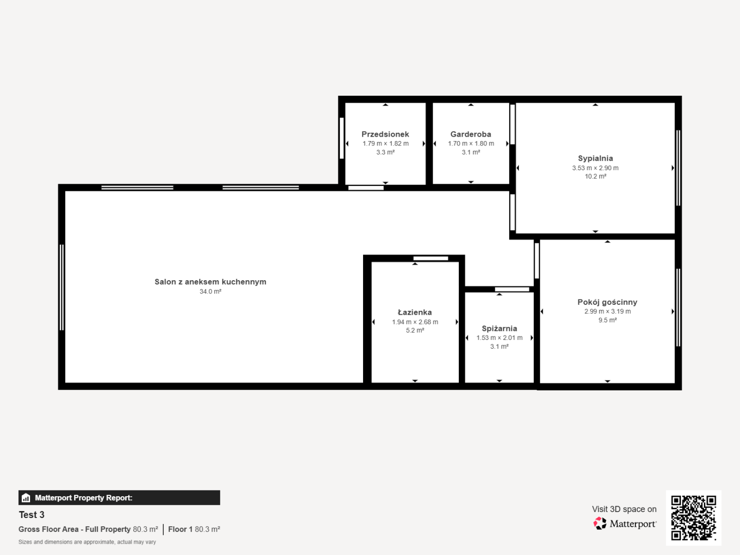
Samo skanowanie to proces znacznie bardziej zaawansowany niż tradycyjna fotografia. SkanTwin wykorzystuje technologię LiDAR (Laser Imaging, Detection, and Ranging), która wysyła tysiące wiązek lasera, by z milimetrową dokładnością zmierzyć każde pomieszczenie. Dzięki temu powstaje nie tylko obraz, ale kompletny cyfrowy bliźniak (Digital Twin) obiektu.
Dane te trafiają na światowej klasy platformę Matterport, gdzie zamieniają się w interaktywny, płynny spacer wirtualny. Co to oznacza dla Ciebie? Z jednego skanowania otrzymujesz:

SkanTwin podchodzi do każdego projektu indywidualnie. W centrum uwagi pozostają jakość, precyzja i efekt, który realnie wspiera sprzedaż oraz działania promocyjne klientów.
Zadzwoń pod numer 509 530 055 i umów się na bezpłatną wycenę skanowania Twojego obiektu.
Brak komentarza, Twój może być pierwszy.
Dodaj komentarz
Użytkowniku, pamiętaj, że w Internecie nie jesteś anonimowy. Ponosisz odpowiedzialność za treści zamieszczane na portalu swiecie24.pl. Dodanie opinii jest równoznaczne z akceptacją Regulaminu portalu. Jeśli zauważyłeś, że któraś opinia łamie prawo lub dobry obyczaj - powiadom nas [email protected] lub użyj przycisku Zgłoś komentarz